
雙寶實業 / 省先進科技企業、高新技術企業、國家開放實驗室

單相直流電流表
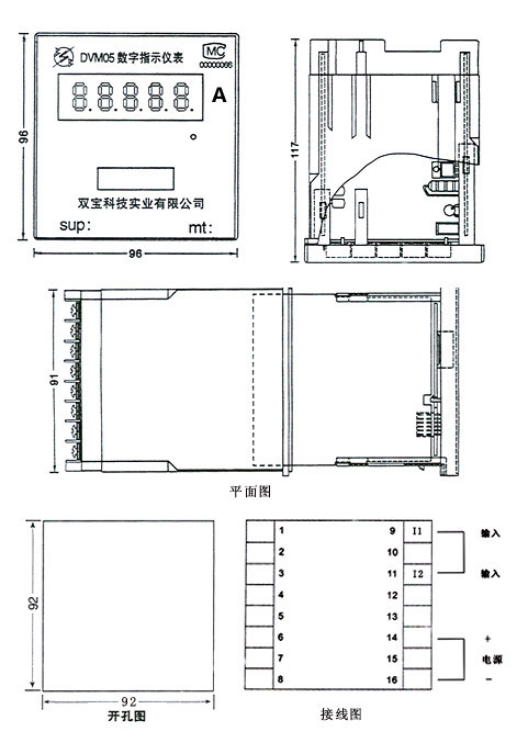
規 格 選 型
產品功能 | DAM05D | |
相數 | 單相 | |
輸入方式 | 直流 | √ |
交流 | — | |
通訊 | 可選 | |
開關量 | — | |
繼電器輸出 | — | |
模擬量輸出 | 可選 | |
顯示方式 | LED | √ |
LCD | — | |
表格中“√”表示該儀表具備此種外型或者此項功能,反之為“—”
技 術 參 數
指 標 | ||
精度等級 | 0.5級、0.2級 | |
輸
入 | 標稱輸入 | AC1A、5A等 |
過 量 程 | 持續:1.2倍,瞬時:電流10倍/5秒 | |
頻 率 | 50Hz±10% | |
電 源 | 輔助電源 | AC、DC100 ~ 270V |
功 耗 | <3VA | |
變送輸出 | DC4 ~ 20mA電流輸出時負載<510Ω, DC0 ~ 5V電壓輸出時負載>20kΩ | |
通訊接口 | RS-485接口,MODBUS-RTU協議, 波特率默認4800(可選2400、9600)bps | |
隔離耐壓 | 電源與輸入>AC2kV、電源與輸出>AC2kV、輸出與輸入>AC1kV | |
絕緣電阻 | ≥100MΩ | |
平均無故障工作時間 | ≥50000h | |
工作條件 | 環境溫度:-10 ~ 55℃,相對濕度≤93%,無腐蝕氣體場所 | |
海拔高度 | ≤2500m | |

訂 貨 示 例
型 號:DAM05D (A型 100*50)
電 源:AC220V
輸入變比:400A /5A
頻 率:50Hz
幾 位 半:3位半
精度等級:0.5級
型 號:DAM05D (B型150*70)
電 源:AC220V
輸入信號:AC400A /5A
頻 率:50Hz
幾 位 半:4位半
變送輸出:DC4~20Ma(可選)
精度等級:0.5級